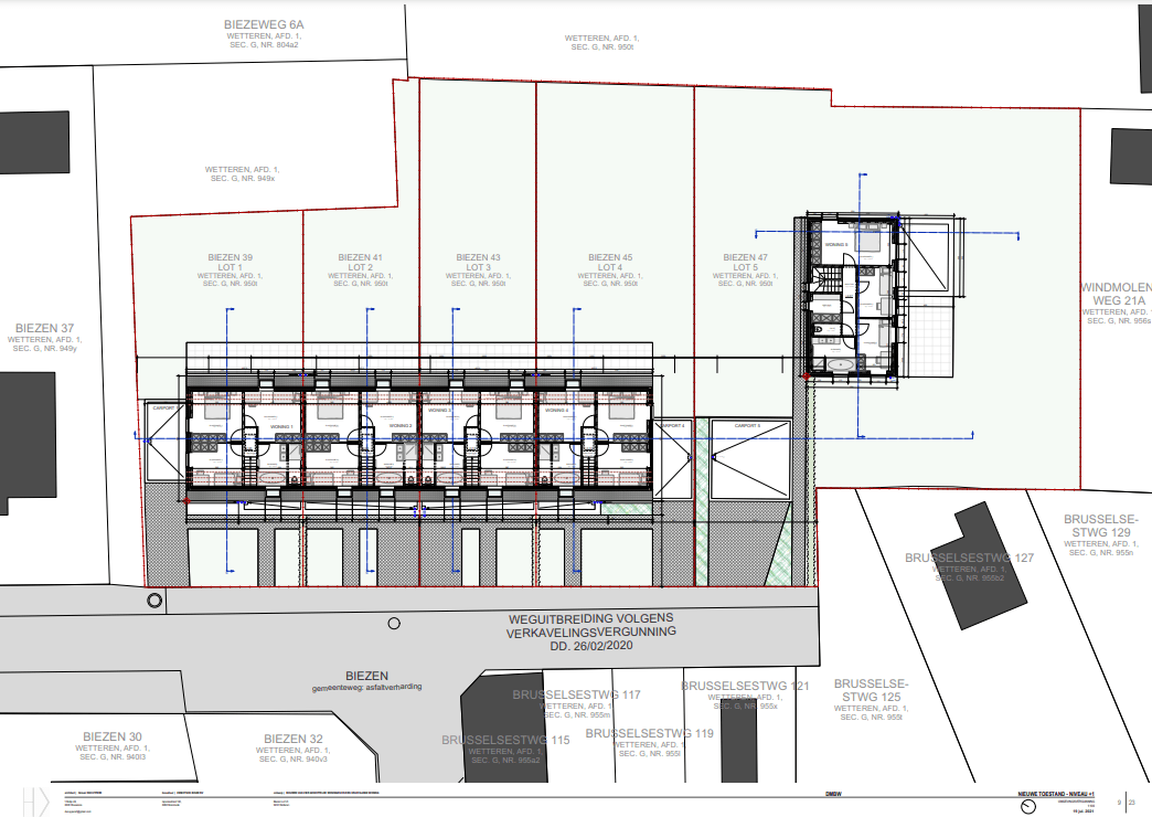
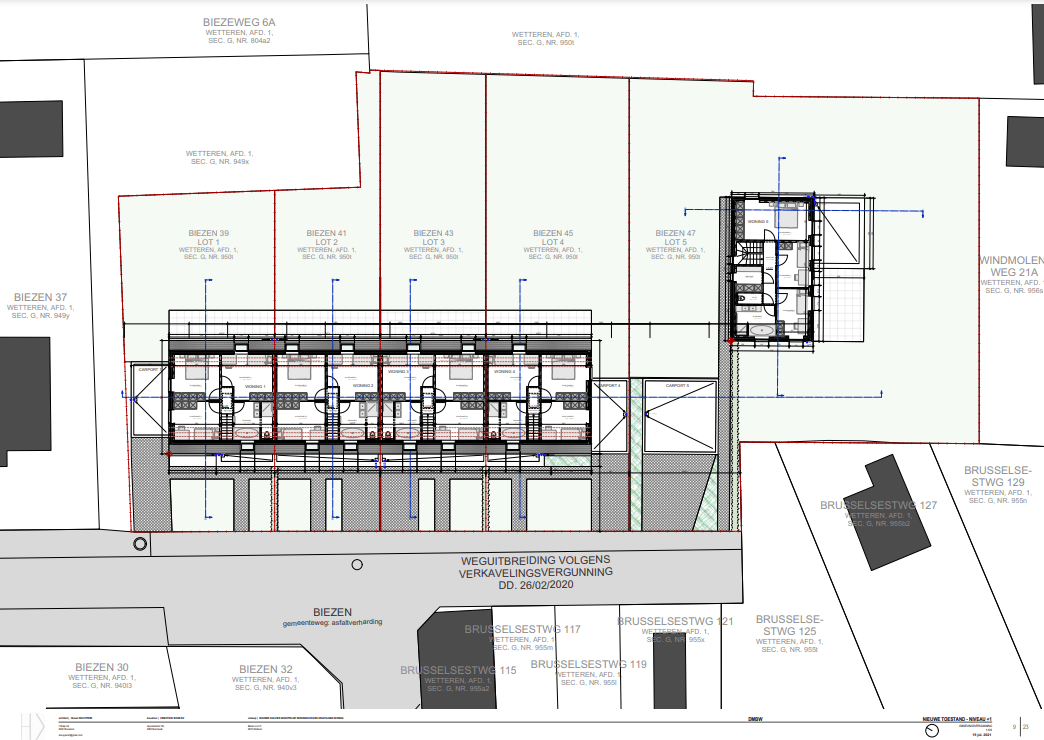
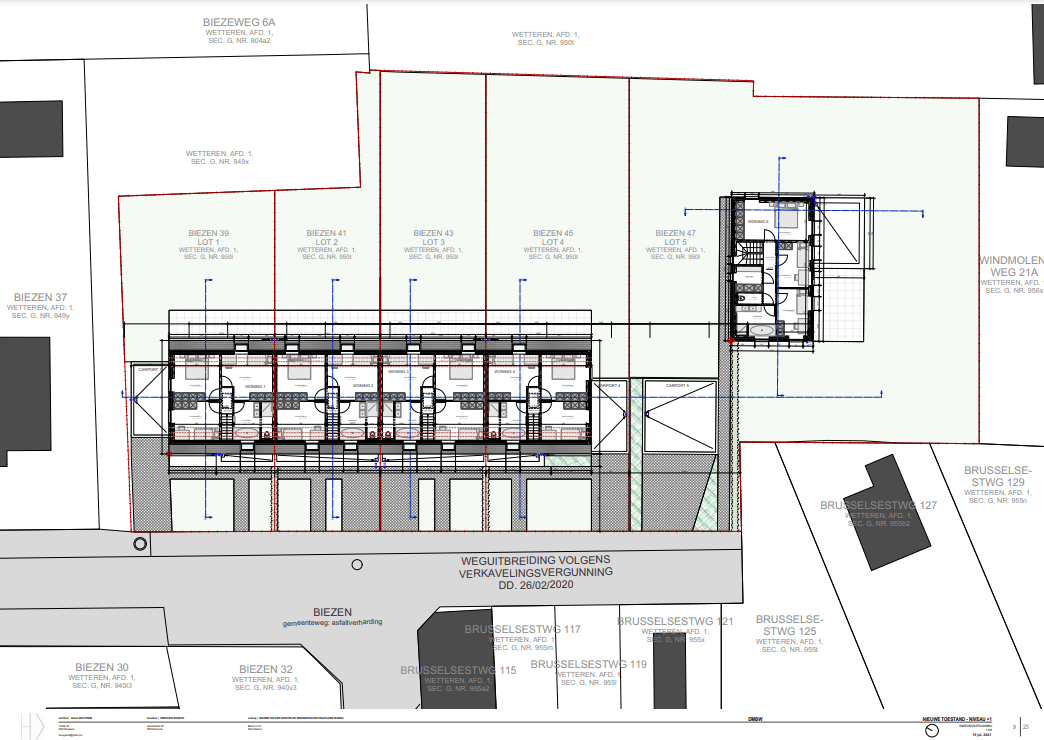
Il ne reste plus qu'une maison à vendre dans ce projet.
Wetteren Biezen

(*) Prix hors TVA et droits d'enregistrement
(*) La construction est encore possible jusqu'à fin 2024 à 6 % de TVA (démolition et reconstruction), sous réserve de remplir certaines conditions.
| Lot | Type de construction | Surface habitable | Chambres | Prix* | Plan |
|---|---|---|---|---|---|
| 1 | - | - | - | Vendu | - |
| 2 | - | - | - | Vendu | - |
| 3 | - | - | - | Vendu | - |
| 4 | - | - | - | Vendu | - |
| 5 | Ouvert | 838 m² | 3 | € 522 116,00 |
Info projet




demuynck bouw nv
Une collaboration vous intéresse ?
Complétez vos coordonnées et ous vous contacterons au plus vite.
