Ces nouvelles maisons sont situées dans la belle commune de Rumbeke. Elles offrent tout le confort et les commodités modernes que vous pouvez attendre d'une maison neuve.
Il existe encore un large choix de matériaux qui seront utilisés pour la construction de ces maisons. Elles disposent d'un beau jardin et d'une terrasse où vous pourrez profiter du soleil. Les maisons sont situées dans un quartier calme, mais à proximité de toutes les commodités dont vous avez besoin, telles que magasins, écoles, transports en commun, hôpital, etc.
N'hésitez pas à nous contacter pour obtenir plus d'informations ou pour prendre rendez-vous afin de consulter et discuter des plans.
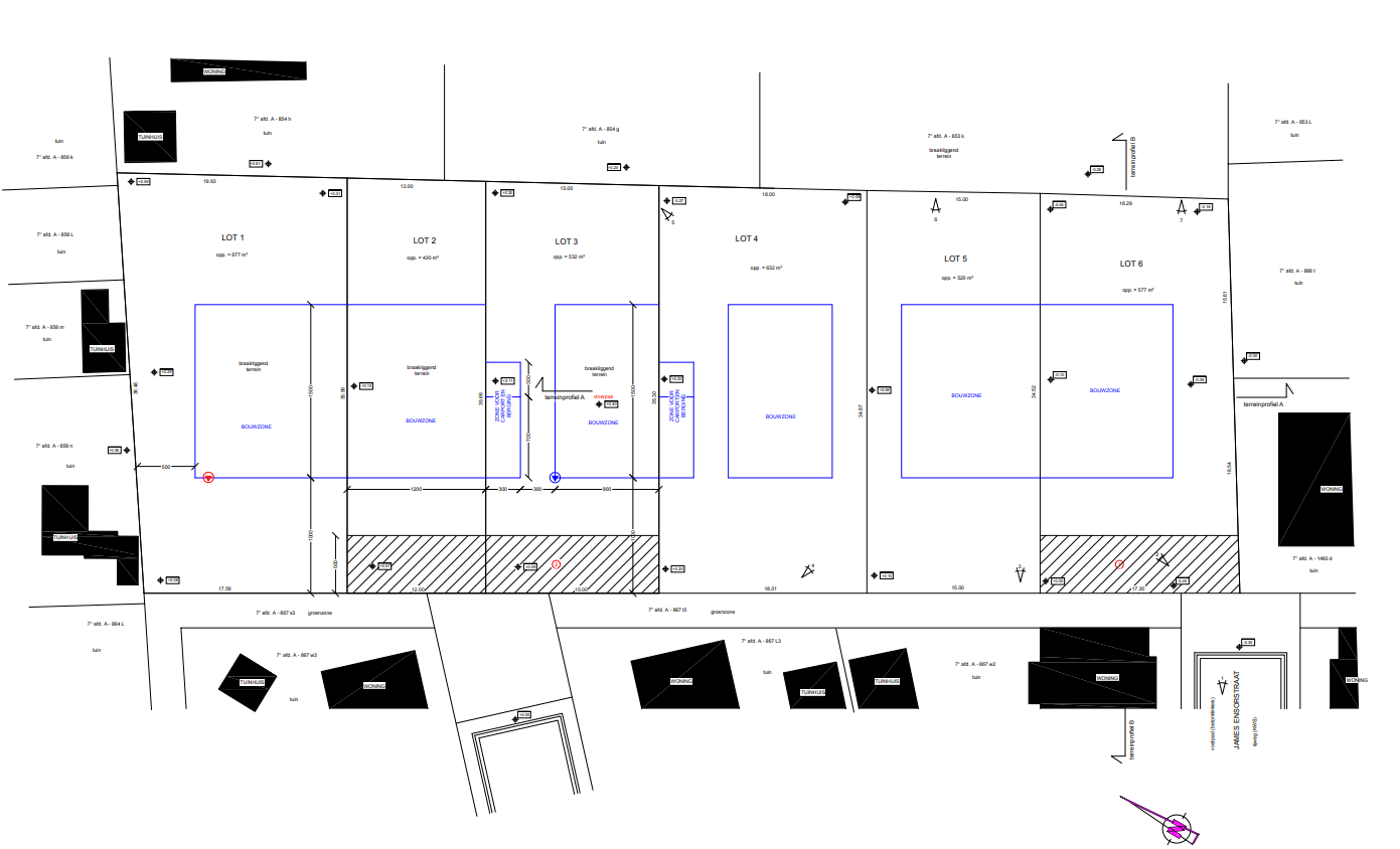
Rumbeke James Ensor

(*) Prix hors TVA et droits d'enregistrement
(*) La construction est encore possible jusqu'en juin 2025 à 6 % de TVA (démolition et reconstruction), sous réserve de remplir les conditions requises.
| Lot | Type de construction | Surface habitable | Chambres | Prix* | Plan |
|---|---|---|---|---|---|
| 1 | Semi-ouvert | 430 m² | 3 | € 481 559,00 | |
| 2 | Semi-ouvert | 430 m² | 3 | € 418 110,00 | |
| 3 | Ouvert | 532 m² | 3 | € 386 344,00 | |
| 4 | Ouvert | 632 m² | 3 | € 414 044,00 | |
| 5 | - | - | - | Vendu | - |
| 6 | Semi-ouvert | 577 m² | 3 | € 457 359,00 | 3 |
info projet












demuynck bouw nv
Une collaboration vous intéresse ?
Complétez vos coordonnées et nous vou contacterons au plus vite.
