Vivre à Becelaere, c’est vivre dans un endroit magnifique : l’atmosphère y est calme et rurale, sans que le village se trouve trop loin de la ville. La proximité de l'autoroute est également un atout.
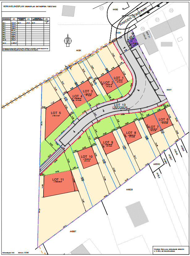
Au bout de la Warden Oomlaan, dans un endroit calme, se trouve ce petit lotissement, à quelques pas de l'école et du centre.
Beselare warden oomlaan








demuynck bouw nv
Une collaboration vous intéresse ?
Complétez vos coordonnées et nous vous contacterons au plus vite.
