Deze mooie huizen zijn ontworpen met comfort en detail voor afwerking in gedachten. Ze bieden de perfecte plek om te wonen en te genieten van het leven.
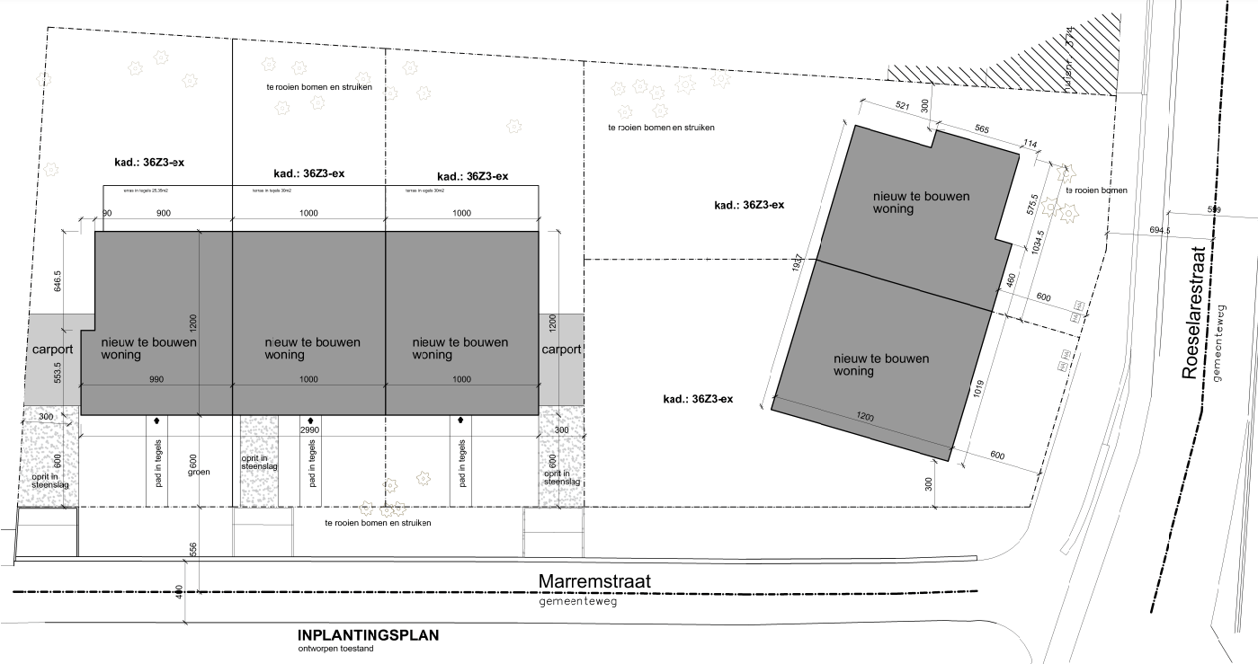
Deze woningen liggen op een rustige locatie in Wevelgem, met gemakkelijke toegang tot alle voorzieningen in de buurt. Of u nu op zoek bent naar een rustige omgeving om te ontspannen, of een levendige buurt vol activiteiten, deze locatie biedt het allemaal. Elke woning is ontworpen met aandacht voor detail en heeft een ruime indeling met veel natuurlijk licht. Deze huizen worden gebouwd met de nieuwste materialen om te zorgen voor maximale duurzaamheid.
Bent u op zoek naar een eerste woning, een gezinswoning of een plek om te investeren, deze woningen in Wevelgem bieden u de perfecte oplossing. Maak een afspraak met ons en ontdek zelf wat deze huizen te bieden hebben.
Wevelgem roeselarestraat








demuynck bouw nv
Interesse om samen te werken?
Laat hier uw gegevens achter
