Beselare is een prachtige plek om te wonen, met zijn rustige en landelijke sfeer, maar toch op korte afstand van de stad. Ook de nabijheid van de autosnelweg is een pluspunt.
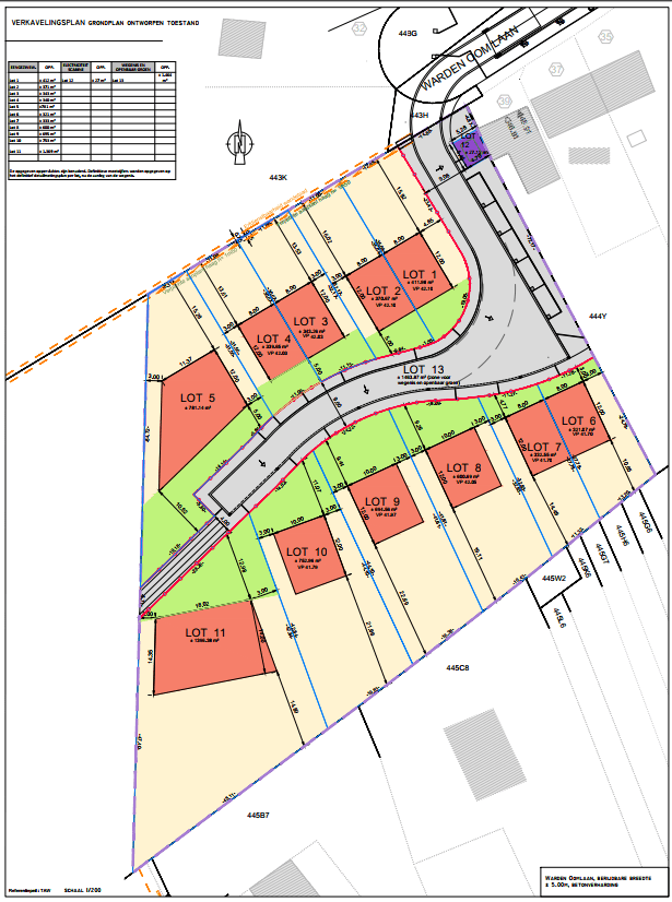
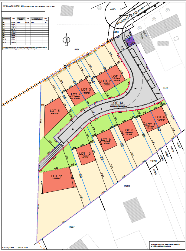
Op het einde van de Warden Oomlaan, met een rustige ligging, bevindt zich deze kleinschalige verkaveling en dit op wandelafstand van de school en het centrum.
Beselare warden oomlaan

(*) Prijs exclusief btw en registratierechten
| Lot | Bouwtype | Woon opp. | Kamers | Prijs* | Plan |
|---|---|---|---|---|---|
| 1 | - | - | - | Verkocht | - |
| 2 | - | - | - | Verkocht | - |
| 3 | - | - | - | Verkocht | - |
| 4 | - | - | - | Verkocht | - |
| 5 | Open | 781 m² | 3 | € 541.932 | |
| 6 | - | - | - | Verkocht | - |
| 7 | - | - | - | Verkocht | - |
| 8 | - | - | - | Verkocht | - |
| 9 | - | - | - | Verkocht | - |
| 10 | - | - | - | Verkocht | - |
| 11 | Open | 1396m² | - | Verkoop op maat | - |
| Wervikstraat | - | - | - | Verkocht | - |
info project







demuynck bouw nv
Interesse om samen te werken?
Laat hier uw gegevens achter
